Недвижимость Ессентуков
102128 объектов
от 75731 компаний

Пятигорск, Пастухова ул, 40

Комнат
1-комн
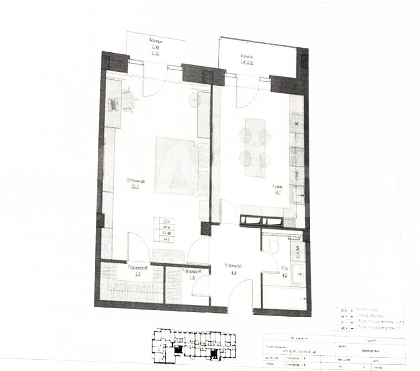
Площадь
54/30/15 м2
Этаж
4 из 12
Планировка
повышенная комфортность
Цена: 7 900 000
Рублей
Добавлено 18.12.25
Обновлено 18.12.25

Ипотечный калькулятор

Стоимость квартиры: 7900000 Р.
Первый взнос: Р. Срок: Лет
Расчет производится по ставке 9,5% годовых и первом взносе 20%

Расчет носит информационно-справочный характер, условия и формулы расчета в конкретных банках могут значительно отличаться, выдача ипотечного займа может сопровождаться дополнительными разовыми и периодическими платежами..

Описание от продавца

Продается квартира на стадии строительства в г.Пятигорске в элитном доме по адресу улица Пастухова д.40
Рядом парк цветник
Цена ниже застройщика
По всем интересующим вопросам обращайтесь по телефону
Адрес: Пастухова ул
Дом: 40
Комнат: 1-комн
Площадь общая: 54 м2
Площадь жилая: 30 м2
Площадь кухни: 15 м2
Планировка: повышенная комфортность
Материал стен: монолитно-кирпичный
Балкон: Балкон
Продажа в ипотеку
Балкон

Похожие предложения

Если Вы хотите посмотреть весь каталог, перейдите по ссылке