/
Недвижимость Старой Бинарадки
102128 объектов
от 75731 компаний

Самара, Кричевская улица, 4

Район
Железнодорожный
Площадь
900 м2
Цена: 38 500 000
Рублей
Добавлено 28.12.25
Обновлено 28.12.25

Ипотечный калькулятор

Стоимость квартиры: 38500000 Р.
Первый взнос: Р. Срок: Лет
Расчет производится по ставке 9,5% годовых и первом взносе 20%

Расчет носит информационно-справочный характер, условия и формулы расчета в конкретных банках могут значительно отличаться, выдача ипотечного займа может сопровождаться дополнительными разовыми и периодическими платежами..

Описание от продавца

Адрес: г. Самара, Железнодорожный р-он, ул. Кричевская, 4.

Объект с арендатором, договор аренды долгосрочный, окупаемость 8 лет.

Строение и земля в собственности и без обременений.

Отдельно стоящее одноэтажное здание на собственном земельном участке.

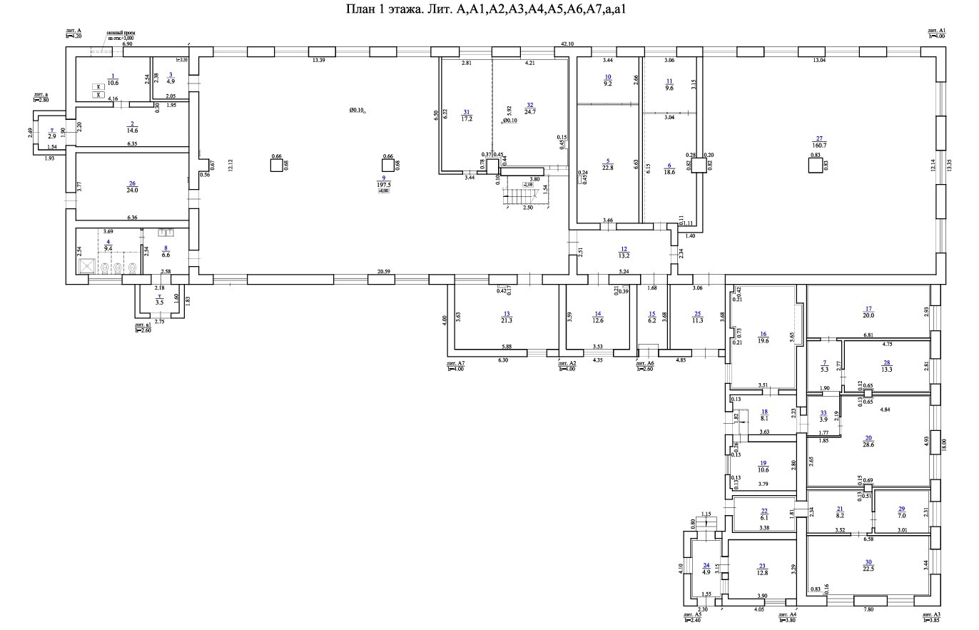
Общая площадь здания: 900 кв. м (791 кв. м на кадастре + пристрой 110 кв. м).

Земельный участок: 1725,71 кв. м (17 соток).

Арендатор:

- Объект сдан в долгосрочную аренду надежной производственной компании с 10-летним опытом работы в сфере производства биокаминов/грилей/мангалов...

- Арендатор готов документально и финансово подтвердить серьёзность намерений в отношении сохранения долгосрочных арендных отношений с новым собственником.

Доход от аренды 380 000 руб./мес. + КУ + содержание объекта. Хозяйственные договоры прямые.

Особенности здания:

- Высота потолков: 4 м.

- Полы: полированный бетон.

- Газовая котельная: обеспечивает отопление всех помещений.

- Водоснабжение и канализация.

- Электрическая мощность: 65 кВт.

- Прямые хозяйственные договоры

Инфраструктура:

- Территория заасфальтирована

- Пультовая охрана с КПП

- Двое въездных ворот на территорию

- Огороженная территория, забор в процессе реконструкции

Преимущества местоположения:

- Выгодное географическое расположение.

- Удобные подъездные пути для грузового транспорта.

- Парковка для клиентов и сотрудников

Техническое состояние:

- Капитальный объект с значительными вложениями в ремонт

- Обновлена кровля, утеплен и гидроизолирован фундамент

- Проведен капитальный ремонт внутри здания и отремонтирован фасад

- Заключение о техническом состоянии: строение надежное со значительным запасом прочности

Условия для сотрудников:

- Созданы места для комфортного пребывания сотрудников.

- Все условия для организации непрерывного производственного процесса

Назначение:

- Нежилое, производственное здание и земельный участок.




Стоимость продажи: 38 500 000 руб.
Район: Железнодорожный
Адрес: Кричевская улица
Дом: 4
Площадь общая: 900 м2

Похожие предложения

Если Вы хотите посмотреть весь каталог, перейдите по ссылке