Недвижимость Энгельса
102128 объектов
от 75731 компаний

Саратов, Саратовская область,

Тип дома
дом
Площадь участка
20 сот.
Площадь
187 м2
Цена: 880 000
Рублей
Добавлено 12.10.22
Обновлено 08.12.25

Ипотечный калькулятор

Стоимость квартиры: 880000 Р.
Первый взнос: Р. Срок: Лет
Расчет производится по ставке 9,5% годовых и первом взносе 20%

Расчет носит информационно-справочный характер, условия и формулы расчета в конкретных банках могут значительно отличаться, выдача ипотечного займа может сопровождаться дополнительными разовыми и периодическими платежами..

Описание от продавца

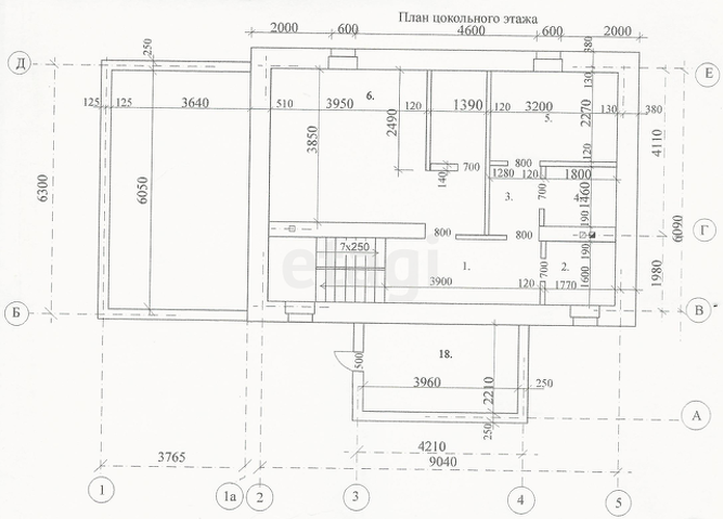
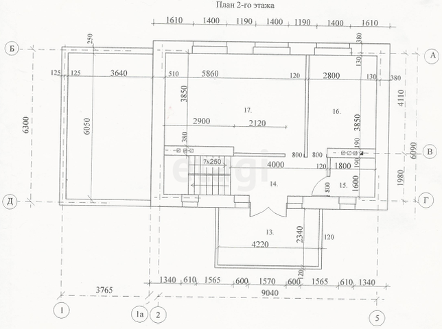
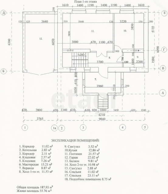
Продам одноэтажный, недостроенный дом серии Сапфир-2, в коттеджном поселке с.Золотовка Саратовской области с цокольным этажом, мансардой, верандой и пристроенным гаражом.
Общая площадь 187,93 м², площадь участка – 20 соток. Кухня, гостиная, 2 спальни, 2 с/у, 2 кладовки, мастерская, подсобное помещение.
Фундамент ленточный железобетонный – блоки ФБС, стены кирпичные – толщина 510 мм, перекрытие – железобетонные плиты.
Коммуникации: газ, электроснабжение, вода – централизованные; канализация – септик.
Проектом предусмотрено: отделка цокольной части дома натуральным камнем; входная группа – дерево, металл; кровля – металлочерипица.
Развитая инфрастуктура. Администрация, почта, школа, детский сад, стадион, кафе, гостиница, магазины, рынок, ФАП и др. в шаговой доступности.
Живописное место. 1 км от Волги. Красивый панорамный вид. Озера, леса, луга. Рыбалка, охота, грибы, ягоды. 100 км от г.Саратова, 40 км от г.Маркса, 0,8 км от федеральной дороги. Благоприятный, мягкий климат, плодородная почва. Курортная зона. Вдоль побережья турбазы, детские лагери, санатории.
Доп. описание: отопление: газовое, канализация: септик, недостроенный, также имеются: , Номер в базе: 7909502. Район: Золотовка с
Адрес: Саратовская область
Дом:
Комнат: 5-комн
Площадь общая: 187 м2
Тип дома: дом
Газ: подключен
Водоснабжение: есть
Канализация: да
Отопление: да
Электричество: подключено
Продажа в ипотеку

Похожие предложения

Если Вы хотите посмотреть весь каталог, перейдите по ссылке