Недвижимость Тростянки
102128 объектов
от 75731 компаний

Саратов, Саратовская область, Октябрьский

Тип дома
коттедж
Площадь участка
2 сот.
Площадь
580 м2
Цена: 18 000 000
Рублей
Добавлено 29.10.22
Обновлено 08.12.25

Ипотечный калькулятор

Стоимость квартиры: 18000000 Р.
Первый взнос: Р. Срок: Лет
Расчет производится по ставке 9,5% годовых и первом взносе 20%

Расчет носит информационно-справочный характер, условия и формулы расчета в конкретных банках могут значительно отличаться, выдача ипотечного займа может сопровождаться дополнительными разовыми и периодическими платежами..

Описание от продавца

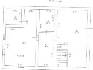
Продается 3-х этажный кирпичный коттедж 580кв.м в районе Городского парка (Первомайский поселок).
Дом и земельный участок (218кв.м.) в собственности. Современный ремонт. 8 комнат, большая кухня, 3 санузла. Все коммуникации центральные, газовое отопление, установлены все приборы учета. В цокольном этаже располагается парковка на 2 машиноместа. Дом рассчитан на большую семью. Ограждение - забор из красного кирпича. Отличный вариант для людей ценящих комфорт и уют.
Помощь в оформление ипотеки по сниженным ставкам,страховка с скидкой до 50%.
Доп. описание: отопление: газовое, канализация: центральная, также имеются: котельная, подвал, цокольный этаж, кухонный гарнитур, шкаф-купе, плита Номер в базе: 3046405. Район: Городской парк
Адрес: Саратовская область
Дом: Октябрьский
Комнат: 8-комн
Площадь общая: 580 м2
Тип дома: коттедж
Газ: подключен
Водоснабжение: есть
Канализация: да
Отопление: да
Электричество: подключено
Продажа в ипотеку

Похожие предложения

Если Вы хотите посмотреть весь каталог, перейдите по ссылке